Work.
About.
Contacts
Work.
About.
Contacts

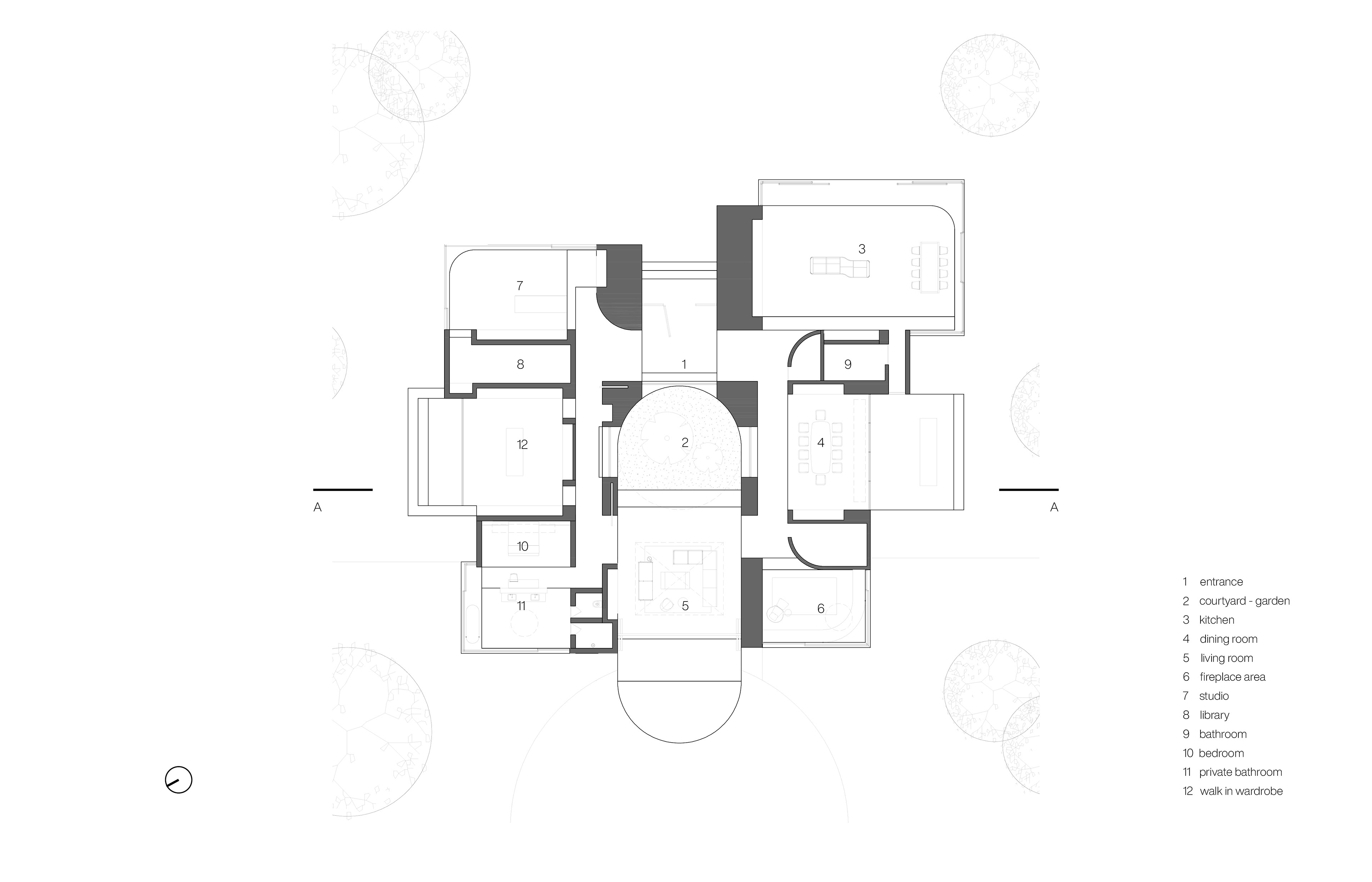
Villa Tan 譚

Shanghai, China

You may also like

Kwasa Damansara
2024
Alsterhouse
2019
Okinawa Grotto
2025
Lake Garda Hotel Competition
2023
Private Yacht
2020
Private Villa
2020
Lake Garda Hotel Competition
2023
The Summerhouse
2025
Apartment 08
2025
Little House
2020
↑Back to Top
Unbuild Creative Studio